Sélection
0
ADHÉRER À LA FNAIM VAR ACCÈS ADHÉRENT
Fnaim-83
  • Accueil
  • Ventes
  • Locations
  • Syndic
  • Gestion locative
  • Nos actualités
  • Nos métiers
  • Nos formations
  • Nos partenaires
VotreVotre
Dans un rayon de
Budget
Entre € et €
Min. €
Max. €
Surface
Entre m2 et m2
Min. m2
Max. m2
Pièces
Entre pièces et pièces
Min. pièces
Max. pièces
  1. Accueil
  2. Sanary Sur Mer
  3. Vente
  4. Appartement
  5. 2 Pièces - 28m²
< Retour

Appartement
2 Pièces 28 m²

Sanary Sur Mer - 83110

179 000 €
Descriptif du bien
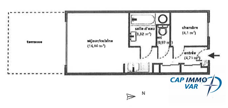
*** EXCLUSIVITÉ *** SANARY-SUR-MER – Résidence Le Marina Au sein d'une résidence recherchée avec piscine et stationnement sécurisé, découvrez ce charmant appartement traversant de type 2 d'environ 28 m², situé en rez-de-chaussée. Il se compose d'une entrée avec rangements desservant une agréable pièce de vie avec cuisine ouverte, prolongée par une terrasse couverte et un espace jardin, idéal pour profiter des extérieurs en toute tranquillité. Côté nuit, vous trouverez une chambre indépendante, une salle d'eau ainsi qu'un WC séparé. Une place de parking privative complète ce bien. Ce bien conviendra parfaitement à un investisseur recherchant un placement locatif, à un acquéreur souhaitant un pied-à-terre sur le secteur, ou encore à un primo-accédant en quête d'un premier achat fonctionnel et bien situé. Honoraires à la charge du vendeur. Dans une copropriété de 32 lots. Aucune procédure n'est en cours. Classe énergie C, Classe climat B Montant moyen estimé des dépenses annuelles d'énergie pour un usage standard, établi à partir des prix de l'énergie de l'année 2021 : entre 566.00 et 766.00 €. Les informations sur les risques auxquels ce bien est exposé sont disponibles sur le site Géorisques : georisques.gouv.fr. Carte pro. CPI 8305 2016 000 009 385
Détails du bien
  • Superficie (m²) 28
  • Code postal 83110
  • Nombre de chambre(s) 1
  • Nombre de pièces 2
Diagnostic de
performances énergétiques
DPE
GES
Ce bien est proposé par
CAP IMMO VAR
CAP IMMO VAR
Voir les biens de l'agence
32 Rue Portalis
83330 Le Beausset
04 94 98 64 30
lebeausset@capimmovar.com
capimmovar.com
Nos outils
Nous contacter pour ce bien

* champs obligatoire

Les informations communiquées sont destinées à "Fnaim Var" éditrice de ce site. Vous bénéficiez d'un droit d'accès, de modification, de rectification et de suppression de vos données personnelles (Loi n°2004-575 du 21 juin 2004 pour la confiance dans l'économie numérique). Pour les exercer, adressez vous à l’adresse de l’Editeur.

Partager ce
bien
Partager ce
bien

* champs obligatoire

Les informations communiquées sont destinées à "Fnaim Var" éditrice de ce site. Vous bénéficiez d'un droit d'accès, de modification, de rectification et de suppression de vos données personnelles (Loi n°2004-575 du 21 juin 2004 pour la confiance dans l'économie numérique). Pour les exercer, adressez vous à l’adresse de l’Editeur.

Calculatrice financière
Mensualités :

* Champs obligatoires

Ces biens
peuvent vous intéresser

  • Vente
    Appartement
    83110 sanary sur mer
    139 000 €
  • Vente
    Appartement
    83110 sanary sur mer
    329 000 €
  • Vente
    Appartement
    83110 sanary sur mer
    514 500 €
FNAIM
Notre top ville
dans le Var
  • Toulon
  • Hyeres
  • Sanary Sur Mer
  • St Raphael
  • Frejus
  • La Seyne Sur Mer
  • Six Fours Les Plages
  • Toulon Ouest
  • Draguignan
  • Toulon Est
  • Bandol
  • La Garde
  • Cavalaire Sur Mer
  • La Valette Du Var
  • Le Lavandou
  • Cogolin
  • Ste Maxime
  • La Crau
  • Le Pradet
  • Bormes Les Mimosas
  • La Londe Les Maures
  • La Farlede
  • Brignoles
  • Carqueiranne

© 2026 | Tous droits réservés |

  • Plan du site
  • Mentions légales
  • Partenaires
  • Contact
  • Contact DPO
Réalisé par
Les sites de la fédération : Fnaim Var, Fnaim Aix Marseille Provence, Fnaim Alpes Maritimes, Fnaim Vaucluse, Fnaim Alpes de Haute Provence - Hautes Alpes

Nous utilisons des cookies pour nous permettre de mieux comprendre comment le site est utilisé. En continuant à utiliser ce site, vous acceptez notre politique de confidentialité. En savoir plus